Mathamangalam
Project Description
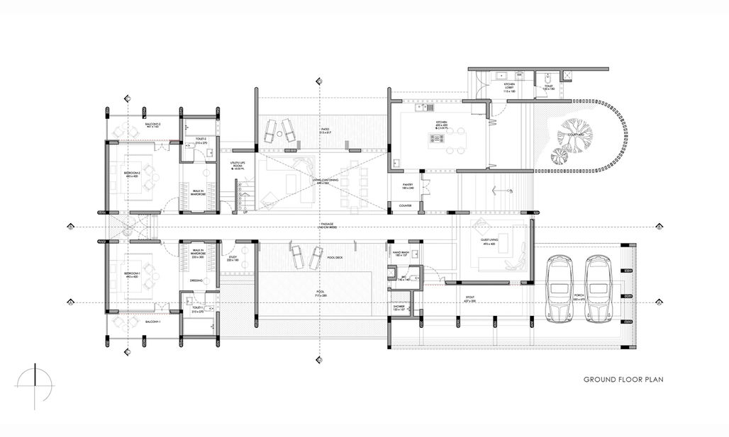
Nestled in the serene village of Mathamangalam, Kannur, this residence embraces its elevated topography, offering a gradual ascent that builds anticipation while seamlessly integrating with its natural surroundings. Designed as two distinct blocks, the home balances privacy and functionality. The first block houses the sleeping quarters, ensuring tranquility, while the second contains the guest living, kitchen, and service areas, promoting efficiency in daily activities. Connecting these spaces is a long, expansive family area, the heart of the home, featuring a double-height ceiling that enhances openness and connectivity. This central space extends towards a swimming pool on one side and a peaceful garden court on the other, fostering relaxation and outdoor engagement.
Thoughtfully designed to suit Kerala’s humid tropical climate, the residence leverages natural ventilation by aligning with the predominant wind patterns, reducing reliance on artificial cooling. A striking overhanging roof, supported by double-height columns, defines the structure while providing shade and visual rhythm. Strategically placed perforated walls enclose the kitchen court and pool area, ensuring privacy while allowing for airflow and filtered light. This interplay of openness and seclusion creates a harmonious living experience, where each space is intimately connected to the larger environment.
Project Architect:
Suhail AK


























